Gå rett til innhold

Bygge levegg selv

En stilig og praktisk levegg med sittebenk som kan oppføres i ulike dimensjoner. Denne byggeguiden er detaljert slik at det skal være enkelt og greit for deg å bygge selv. Vi har også lagt til noen gode råd og tips, som sørger for lang levetid på leveggen.

NORD levegg / sittebenk

Mange trenger en levegg i hagen, gjerne for å skjerme innsyn eller vær og vind. En levegg kan også dele opp ulike soner i uterommet. Designer og programleder Halvor Bakke har gjort nettopp det, og bygget en flott levegg som har blitt et smykke hagen på Trae. Leveggen har en herlig sittebenk på den ene siden og en "klatrevegg" for planter på den andre siden. Leveggen kan bygges så kort og lang som du har plass til eller behov for. Følger du denne byggeguiden, får du en levegg til glede i mange år.

Inspiration block module
Levegg Forsiden 3X4 Size Small
Alternative text her Finn ut mer om kolleksjonen vår

NORD

Vi har kalt leveggen for "NORD levegg", fordi det ble valgt å bruke produkter nettopp fra vår NORD-kolleksjonen da denne leveggen ble designet. Du kan selvsagt også bruke andre kledninger fra oss, beiset eller malt, tilpasset hus, hytte eller uterommet du skal ha leveggen.

Text block module

Moduler og mål

Guide Uterom Nord Levegg Konstruksjon 00 Modul Og Maal Iso 3 Size Large

Målene som er oppgitt i denne guiden, er tilsvarende målene som ble brukt til å bygge Halvor Bakkes levegg. Du kan selvsagt benytte andre mål, men må selv da passe på behov for å justere endrede lengder på stolpestøtter osv.  

 

Guide Uterom Nord Levegg Konstruksjon 00 Modul Og Maal Iso 4 Size Large

Denne leveggen kan bygges så lang som du har behov for eller ønsker. Alle materialene som er benyttet er impregnerte materialer og produsert hos Bergene Holm AS.

Text block module
Text block module
Text block module

Fundament og stendere

Klargjør bakken for støping. Sørg for rett linje ved å bruke rettesnor eller rettholt. Grav ned 120-140mm søylerør(A) med 90cm mellomrom, med unntak av det ytterste søylerør(B) som skal graves ned med 45 cm avstand. Bruk gjerne et jordbor, pass på at søylerørene går så dypt av de ikke påvirkes av tele.

Grav så ned søylerør(C) 34 cm foran alle punktene til bakveggen, med unntak av til sitteplassen.

Kapp til klosser(D) av 48x148mm bord, som er bredere enn papprøret og fest de til stolpestøttene(E). Klargjør minimum to armeringsjern pr. rør som settes ned i støpen rett før søylerørene fylles med betong. Senk så stolpestøttene ned i røret. Fest en 48x48mm lekt(F) til toppen av alle klossene for å få de i vinkel.

Følg betongleverandørens anbefalinger mht tørking. Ta vare på klossene for eventuelt senere bruk.

Guide Uterom Nord Levegg Konstruksjon 01 Fundament Og Stendere 2 Size Large

Text block module

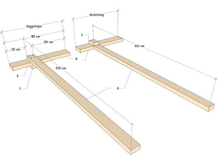
Sette sammen veggkonstruksjonen

Veggstolper lages ved å kapp til 48x98mm bord(A) i 225 cm lengder. Gjenta dette for det antall veggmoduler du skal sette opp. Kapp samme antall takbjelker av 48x148mm bord(B) i 85cm lengder. Fest takbjelken(B) i vinkel øverst i stenderen (A) med 50 cm stikkende ut foran og 25 cm bak, med 4 kraftige treskruer (eks. Franske trebolter) inn fra 48x148 mm siden.

Fest deretter en 48x148mm kloss(C) i 10 cm lengde på den andre siden for feste til kledningbord.

Avslutning lages av et 210cm langt 48x98mm bord(E) som du fester ett 48x148mm(B) bord på toppen av. Denne skal stikke ut samme avstand som veggstolpene. Denne skal også ha en kloss(C) på innsiden.

Guide Uterom Nord Levegg Konstruksjon 02 Sette Sammen Veggkonstruksjonen 2 Size Large

Text block module

Feste veggstolene til stolpestøttene

Fest veggstolpene(A), samt avslutningestolpen(B) til støttene(C) med låseskruer. Bruk gjerne støttebord(D) for å få stolpene i linje. Vatre stolpene slik at de står rett.

Guide Uterom Nord Levegg Konstruksjon 03 Feste Veggkonstruksjonen Til Stolpestoettene Size Large

Text block module

Sitteplass første ramme

Fest en 48x48 lekt(A) horisontalt på søylestolpene 32 cm fra bunnen av søylen. Skjær til to 48x98 mm bord, ene på 40cm(B) og andre 37cm(C). Fest bord(C) 5 cm inn på siden av det lengre bordet(C).

Fest så det oppå det liggende lekten(A) som går langs hele bakveggen.

Borr og fest et vinkelbeslag(D) på fundamentet bak det vertikale bordet(C) Vatre bordet og fest det til vinkelbeslaget med ca. 1 cm avstand til bakken. Gjenta dette for hver søylestolpe.

Fest tilslutt en 48x48mm lekt(E) i forkant av sitteplassen.

Guide Uterom Nord Levegg Konstruksjon 04 Utstikk Til Sitteplass 2 Size Large

Text block module

Kledning rundt sitteplass

Skjær ut en liten spile(A) som spikres langs den vertikal bjelke(B) for feste til kledningsbordene.

Fest første kledningsbord(C) oppå de liggende bjelkene.

Fest resten av kledningsbordene i underkant. Skjær til bunnbordet(D) dersom nødvendig.

Guide Uterom Nord Levegg Konstruksjon 05 Kledning Rundt Sitteplass 2 Size Large

Text block module

Kledning front og bak

Fra det øverste kledningsbordet(A) fortsett å sette opp 19x148mm kledningsbord til nedre kant av toppbjelkene(B).

Skjær til det siste bordet(C) så det avsluttes mot bunnen av toppbjelkene.

Skjær deretter til bord(D) som festes imellom toppbjelkene. Gjenta det for baksiden.

Guide Uterom Nord Levegg Konstruksjon 06 Kle Inn Resten Av Veggen Foran Og Bak Size Large

Text block module

Kle inn sittebenk

På sittebenken er det ideelt å bruke to lengder med 22x145mm terrassebord(A) og en lengde 22x120mm terrassebord(B) i midten. Det gir perfekt bredde og du slipper å tilpasse bredden. Påse at bordene stikker 4 cm utenfor enden. La det være ca. 5 mm mellom terrassebordene.

Bruk deretter 22x123mm kledningsbord(C) for å ramme inn sitteplassen.

Guide Uterom Nord Levegg Konstruksjon 07 Terrassebord Og Kledning Paa Sitteplass 2 Size Large

Text block module

Kledning på toppramme

Plasser et 19x148mm kledningbord(A) på toppen av søylene slik at klossene og reisverket er beskyttet fra regn. Fest 19x198 mm kledningsbord(B) på endene i samme lengde som toppbjelkene(C). Påse at de går i linje med bordet på toppen(A).

Avslutt med å sette på bord(D) foran og bak.

Guide Uterom Nord Levegg Konstruksjon 08 Kledning Paa Toppkonstruksjon Size Large

Text block module

Sett på kantbord

Avslutt leveggen ved å feste et 19x148 mm kantbord(A) på hver av endene av leveggen.

Guide Uterom Nord Levegg Konstruksjon 09 Kle Inn Avslutningene Size Large

Text block module

Da er din levegg klar til bruk!

Guide Uterom Levegg Halvor Bakke 13 Konstruksjon Ferdig 2 Size Extralarge