Bygge liten pergola
Denne guiden gir en steg-for-steg-beskrivelse for å bygge en liten pergola, perfekt for små uteområder. Den dekker materialvalg, dimensjoner og monteringsprosessen, slik at du enkelt kan skape en funksjonell og stilfull uteplass.
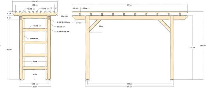
Allsidig pergola
Tanken er at den både kan brukes til å henge opp hengekøye, hengestoler, lyslykter, eller som sittebenk ved å legge en lem på nederste trinn. Vi har lagt vekt på å bygge pergolaen i materialer som tåler det norske klimaet godt. Det er brukt solide dimensjoner og impregnert materialer, som gir en pergola som vil stå i mange år. Det er også lagt vekt på å bruke få dimensjoner, slik at materiallisten blir enklere.
 
             
                 
         
         
         
         
         
         
         
         
         
         
         
         
         
         
         
         
        